Gartenhaus LUNA 1 – Fichte massiv – naturbelassen – 360×360 cm
Artikelnummer: 9005111700
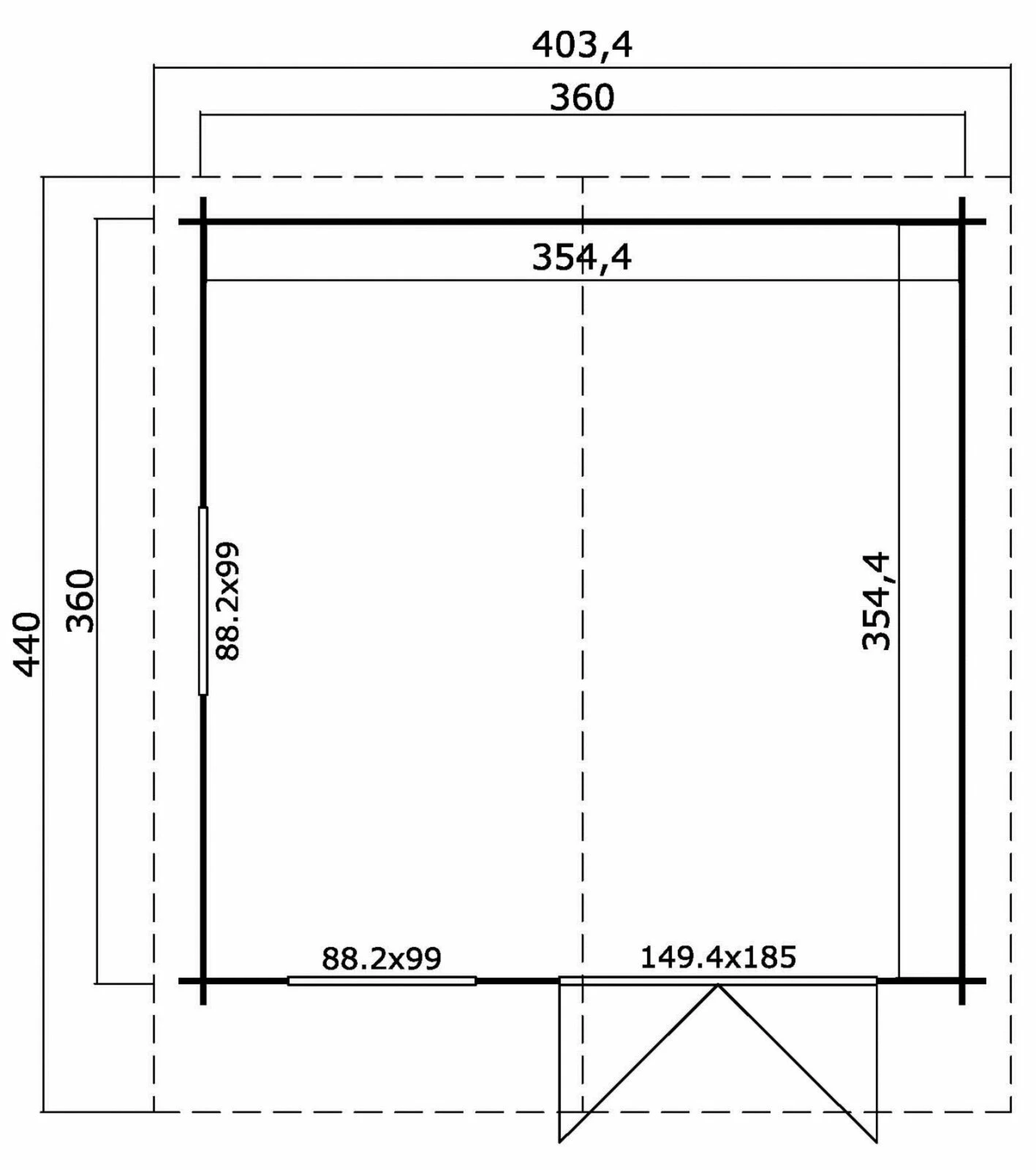
- eine Doppeltür
- zwei Einzelfenster
- Grundfläche: ca. 12,56 m²
Im Gartenhaus LUNA 1 finden Sie massig Platz, um schöne Gartentage zu verbringen oder zur Lagerung von Gegenständen. Durch die große Doppeltür und zwei Einzelfenster ist eine hohe Lichtdurchflutung jederzeit gewährleistet. Die Dachpappe sowie der passende Fußboden sind bereits im Lieferumfang enthalten. In dem etwa 12,56 m² großen Gartenhaus haben Sie also genügend Platz für vielfältige Zwecke.
Wichtig: Für eine Anlieferung nach Hause (frei Bordsteinkante) muss die Zufahrt mit einem 40-t-LKW möglich sein.
Bitte informieren Sie sich bei den zuständigen Behörden, ob eine Baugenehmigung erforderlich ist oder bestimmte Schneelasten berücksichtigt werden müssen.
- Farbe: natur
- Material: 100% Fichte
- Satteldach
- eine Doppeltür
- zwei Einzelfenster
- Dachpappe und Fußboden inklusive
- Räume: 1
- spiegelverkehrte Montage möglich
- Grundfläche: ca. 12,56 m²
- Dachfläche: ca. 18,48 m²
- Wandstärke: ca. 28 mm
- Firsthöhe: ca. 245,1 cm
- Seitenwandhöhe: ca. 193,8 cm
- Fundamentmaß: BxT ca. 360 x 360 cm
















Rezensionen
Es gibt noch keine Rezensionen.